Commercial space for rent - Montréal-Est - For Rent
| Listing number | 9191 |
|---|---|
| ID | N/A |
| Price | $22.00/ square foot |
| Rooms | 0 |
| Type | Street retail space |
| Category | N/A |
| Lot size | 0.00ft2 |
|---|---|
| Year Built | 2025 |
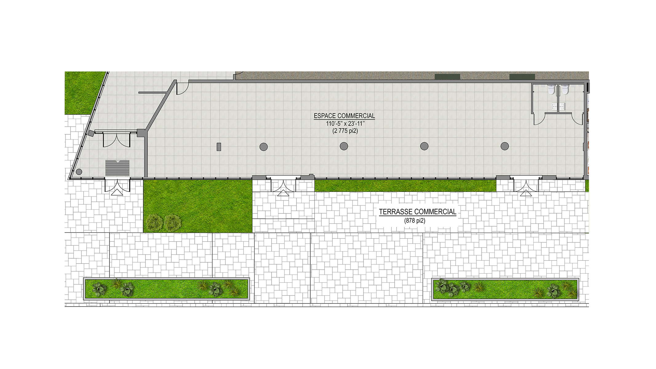
| Footage | 2,775.00ft2 |
| Floors / Stories | 1 |
| Parking | Yes |
| Is it a sublease? | No |
Description
Commercial Space for Lease - Montréal-Est
Located at 37 Broadway Street, Montréal-Est, the Le O-Rive building offers 2,775 sq. ft. of commercial space, divisible to suit your needs.
Net rent starts at $22/sq. ft., adjustable depending on tenant improvements.
Available immediately.
Features :
18-foot ceilings
•Base building condition
•25 public underground parking spaces
•Front and rear access doors
•Delivery access door
•Garbage chute
•Secure chip-card access
Additional Costs :
CAM: $1.75 to $2.00/sq. ft.
Taxes: $7.75 to $8.00/sq. ft.
The Montréal-Est area is rapidly growing, offering a dynamic environment with easy access to major roadways and close proximity to essential shops and services.
Contact us at 579-259-2006 or location@groupeevoludev.com for more information.
Property Features
- Air conditioning
- Improvements
- Elevator
- Heating
- Availability
- Sprinklers
- Clear height (ceiling)
- Near Highway
- Parking






