Local en RDC de bureau – 3660 boulevard Wilfrid-Hamel - À louer
| Numéro de l'annonce | 9301 |
|---|---|
| ID | N/D |
| Prix | 123 456,00$/ - |
| Pièces | 1 |
| Type | Bureaux |
| Catégorie | N/D |
| Taille du lot | - |
|---|---|
| Année de construction | - |
| Superficie | 3 730,00pi2 |
| Étages | 1 |
| Stationnement | Disponibles |
| Sous-location? | Non |
| Fiche 1 | Télécharger |
|---|
Description
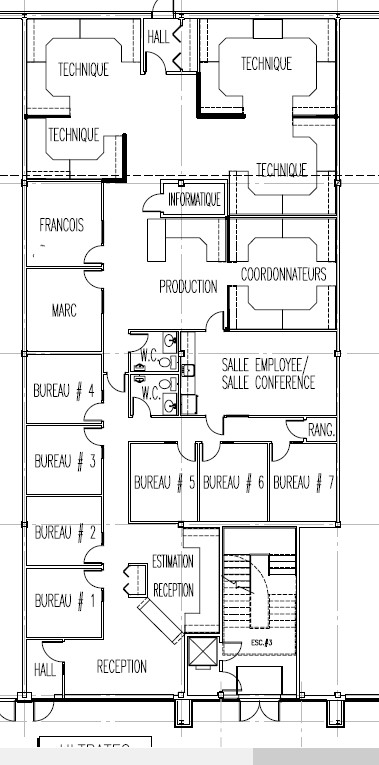
Local en RdC de bureau – Les Saules
Situé au 3660 boulevard Wilfrid-Hamel, Québec, ce local de plain-pied offre un espace déjà aménagé en bureau, idéal pour une entreprise souhaitant s’installer rapidement tout en conservant une flexibilité d’adaptation selon ses besoins.
L’aménagement actuel comprend huit bureaux fermés, une salle de conférence ainsi qu’une cuisinette, permettant une organisation efficace du travail et un environnement structuré pour les équipes. L’ensemble est conçu pour offrir à la fois confidentialité, productivité et confort au quotidien.
L’espace bénéficie également d’une porte double à l’arrière, facilitant les opérations, les livraisons ou l’accès pour le personnel, un atout non négligeable pour plusieurs types d’entreprises. Situé au rez-de-chaussée, le local est facilement accessible pour la clientèle et les employés, ce qui en fait un emplacement pratique et fonctionnel.
Grâce à sa configuration, ce local peut convenir à une grande variété d’usages, que ce soit pour des bureaux professionnels, une clinique, une entreprise de services, ou même un commerce. Il est également possible de réaménager l’espace afin de l’adapter à un usage commercial selon les besoins du locataire.
Implanté sur un axe majeur de Québec, le boulevard Wilfrid-Hamel, cet emplacement offre une excellente accessibilité et une visibilité intéressante pour toute entreprise souhaitant s’y établir.
Ce local représente une belle opportunité pour une entreprise à la recherche d’un espace fonctionnel, adaptable et bien situé.
Fonctionnalités
Le local en RdC
Plusieurs bureaux fermés
Cuisinette ou salle de conférence
Deux salles d’eau
Il a comme avantage les points suivants
Zone de stationnement pour le locataire
Prise de possession rapide possible
Secteur Les Saules de la ville
Secteur intéressant pour :
Proximité de l’autoroute Henri-IV (73)
Proximité de L’autoroute Capitale
Proximité de Robert-Bourassa
Caractéristiques
- Disponibilité
- Proximité des autoroutes
- Salles de conférence
- Stationnement
- Transport en commun






